SURELEVATION D'UNE MAISON
Surélévation de maison à Montlignon 95680 par l'entreprise E.TOR
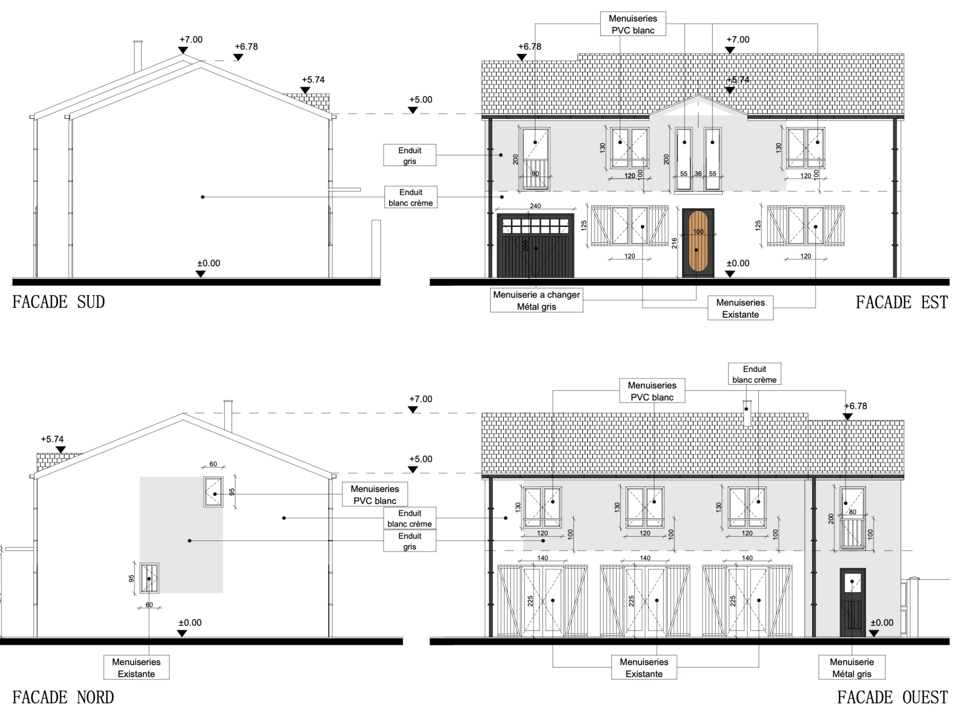
L'entreprise E.TOR est spécialisée dans les travaux de surélévation de maison et d'agrandissement d'habitat en Île-de-France. Récemment, notre équipe a réalisé un projet de surélévation à Montlignon (95680) afin d' optimiser l'étage d'une maison individuelle. Grâce à ce chantier, les propriétaires bénéficient désormais d'un espace habitable plus spacieux, confortable et parfaitement adapté à leurs besoins.
La surélévation de maison est une solution idéale pour gagner de la surface habitable sans empiéter sur le jardin ou modifier l'empreinte au sol du bâtiment. À Montlignon, commune du Val-d'Oise (95), où les terrains sont parfois contraints, ce type de travaux permet :
-
d' optimiser l'étage existant,
-
d'ajouter de nouvelles chambres, un bureau ou une suite parentale,
-
de valoriser le patrimoine immobilier,
-
de donner un style architectural moderne et harmonieux à la maison.
Les travaux de surélévation réalisés par E.TOR à Montlignon
Étude du projet et démarches administratives
Avant d'entamer le chantier, E.TOR a accompagné les propriétaires dans les démarches administratives, notamment la déclaration préalable et le respect du PLU de Montlignon (95680) .
Renforcement de la structure existante
Une surélévation nécessite une étude approfondie de la charpente et des fondations. Nos équipes ont renforcé les structures pour assurer la stabilité et la durabilité du nouvel étage.
Optimisation et aménagement de l'étage
La maison a été rehaussée afin de permettre un aménagement intérieur sur-mesure : création de plusieurs pièces lumineuses, isolation thermique renforcée et mise en valeur des volumes.
Finitions modernes et esthétiques
L'entreprise E.TOR a veillé à ce que les finitions respectent l'esthétique de la maison, tout en apportant une touche contemporaine et fonctionnelle.
Les avantages d'une surélévation
Faire appel à E.TOR pour vos travaux , c'est bénéficier de :
-
une expertise reconnue en agrandissement et surélévation,
-
un accompagnement personnalisé du début à la fin du projet,
-
des solutions sur-mesure adaptées à vos besoins,
-
une valeur ajoutée importante à votre maison.
Grâce à son savoir-faire, l'entreprise E.TOR illustre parfaitement notre engagement à offrir des espaces de vie modernes, confortables et fonctionnels, tout en respectant les contraintes techniques et réglementaires.

Votre témoignage
follow us !
Demande de contact prise en compte.