Rénovation total d'un bâtiment PLOUVORN 29420
Rénovation complète d’une maison de bourg à Plouvorn 29420
L’entreprise E.TOR interviens dans le domaine de la réfection et rénovation de bâtiments. À Plouvorn (29420), un chantier d’envergure sur une maison de bourg, transformant totalement l’espace de vie grâce à des travaux modernes, durables et esthétiques.
Une réfection globale
Les propriétaires souhaitaient redonner une seconde jeunesse à leur maison de bourg à Plouvorn tout en l’adaptant aux standards actuels. L’équipe d’E.TOR a pris en charge l’intégralité du projet :
-
Changement des ouvertures en aluminium anthracite pour un design moderne et une meilleure isolation.
-
Aménagement complet du rez-de-chaussée et de l’étage afin d’optimiser chaque mètre carré.
-
Transformation de l’ancien garage en un nouvel espace habitable avec la création d’une chambre spacieuse et sa salle de bains privative.
Grâce à ce savoir-faire, la bâtisse a gagné en confort, en luminosité et en performance énergétique.
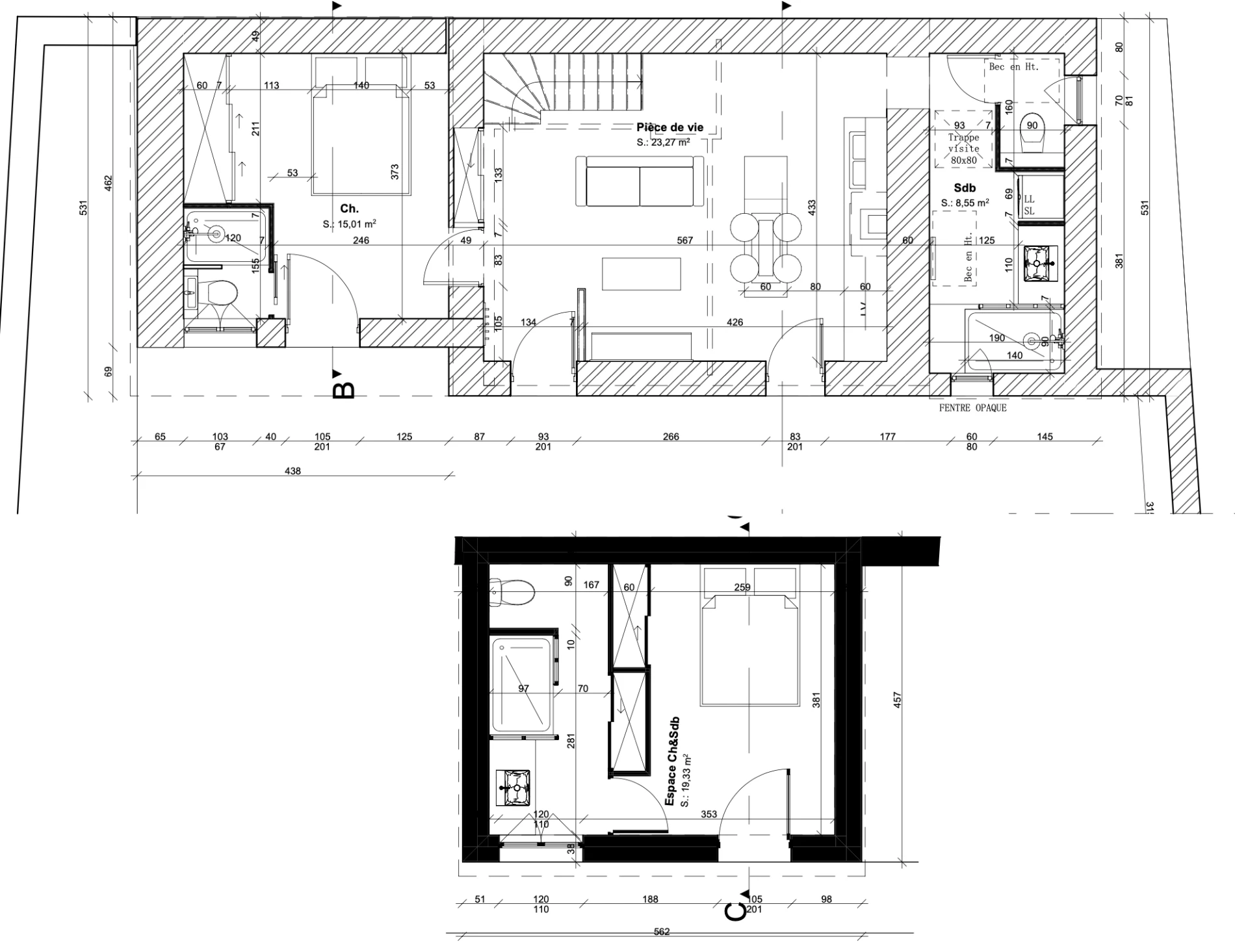
Un rez-de-chaussée réaménagé pour plus de convivialité
Optimisation des volumes
Le rez-de-chaussée a été totalement repensé par E.TOR. Les anciennes cloisons ont été supprimées pour créer un espace de vie ouvert et lumineux, favorisant la convivialité.
Modernité et esthétisme
Les nouvelles ouvertures en aluminium anthracite apportent une touche de modernité et renforcent la luminosité naturelle de la pièce principale. Cet élément architectural confère également un style contemporain en parfaite harmonie avec le caractère de la maison de bourg.
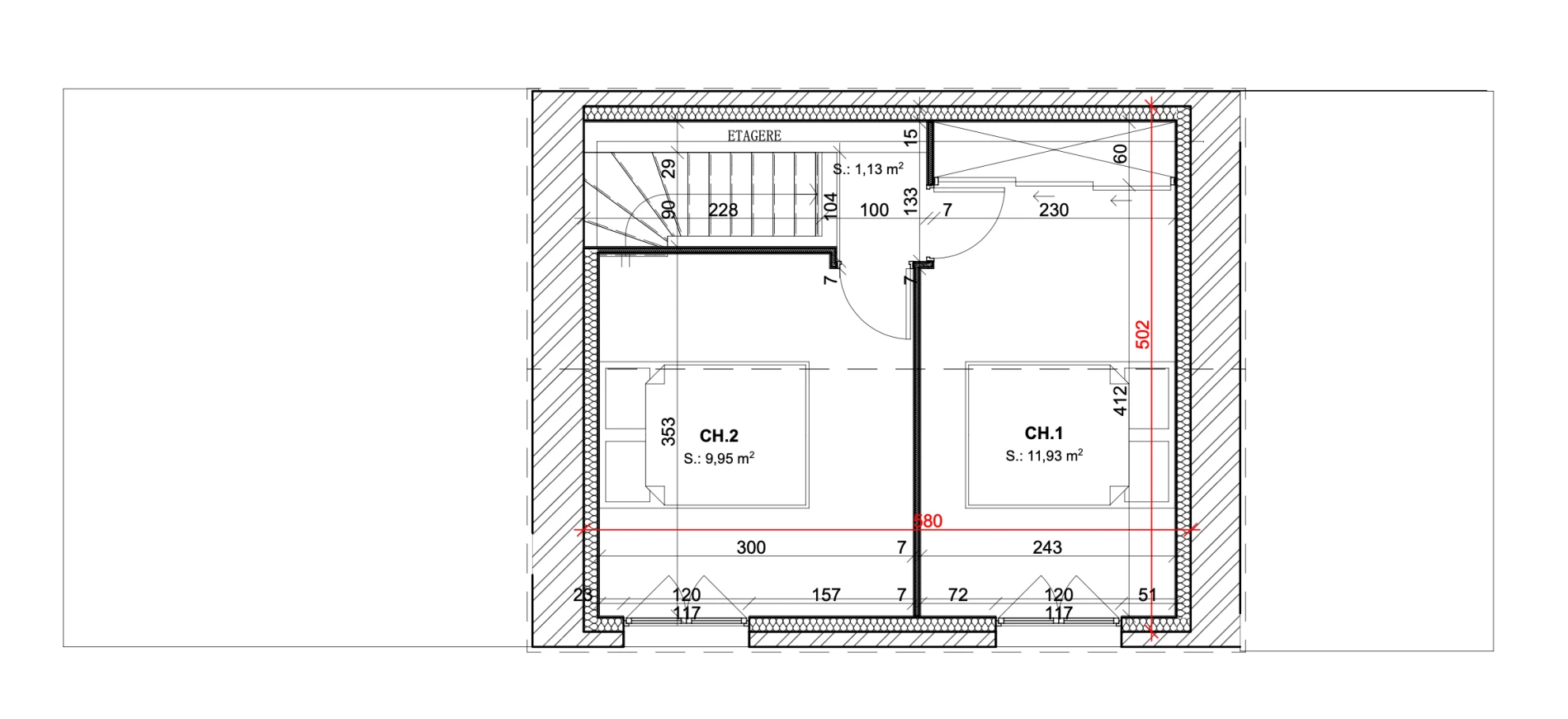
Un étage fonctionnel et chaleureux
L’étage a bénéficié d’un aménagement complet : redistribution des pièces, rénovation des sols, mise aux normes électriques et installation de nouveaux rangements. L’objectif était de créer un espace confortable et adapté au quotidien des habitants.
Transformation du garage en suite parentale
L’un des points forts de cette réfection à Plouvorn est sans conteste la création d’une nouvelle chambre avec salle de bains à la place de l’ancien garage. Ce nouvel espace, pensé comme une suite parentale, combine praticité et confort :
-
Chambre spacieuse et lumineuse.
-
Salle de bains moderne et fonctionnelle.
-
Accès direct au reste de la maison pour plus de fluidité dans les déplacements.
Un accompagnement sur-mesure
De la conception des plans en tenant compte des contraintes techniques, budgétaires et esthétiques.
Des matériaux durables et esthétiques
Le choix des menuiseries aluminium anthracite illustre parfaitement l’engagement en faveur de la qualité, de la durabilité et de l’esthétique.

Votre témoignage
follow us !
Demande de contact prise en compte.